新闻动态

  • 高、低压成套开关柜母线设计标准

    母线是指在成套开关柜中起到关键作用的导体,它的主要功能是连接柜间以及柜内的各种电气设备,实现电能的汇集、分配和传送。母线在开关柜中的地位举足轻重,就如同人体的血管一样,将电力源源不断地输送到各个设备中。 当发生短路故障时,母线需要承受短路电流所带来的巨大发热和电动力作用。这就要求母线具备良好的导电性能、耐热性能和机械强度,以确保在短路情况下能够稳定工作,不至于出现熔断、变形等问题,从而保障整个电力系统的正常运行。

    2024-08-19 大发体育在线注册,大发体育(中国)

  • 红外成像测温柜门发现主变出口总开关接触不良

    红外成像测温柜门发现主变出口总开关接触不良

    2023-08-24 大发体育在线注册,大发体育(中国)

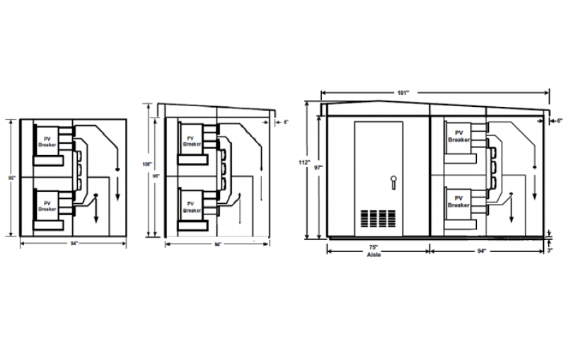
  • IEEE标准中压开关柜要求

    IEEE标准中压开关柜要求

    2022-11-28 大发体育在线注册,大发体育(中国)

  • 空气绝缘开关柜知识介绍分享

    空气绝缘开关柜知识介绍分享

    2022-11-16 大发体育在线注册,大发体育(中国)

  • 40.5kV开关柜绝缘可靠性的探究分享

    40.5kV开关柜绝缘可靠性的探究分享

    2022-11-15 大发体育在线注册,大发体育(中国)

  • 穿心电流互感器的中压应用分享

    穿心电流互感器的中压应用分享

    2022-11-14 大发体育在线注册,大发体育(中国)

  • 中压开关柜改造解决方案分享

    中压开关柜改造解决方案分享

    2022-11-03 大发体育在线注册,大发体育(中国)

  • 关于接地开关关合知识分享

    关于接地开关关合知识分享

    2022-10-31 大发体育在线注册,大发体育(中国)

上一页12下一页 转至第
首页
产品
新闻
联系